Landmark X Brookswood, Langley (已售完) 兰里大地豪华独立屋社区 2021-11 |
![]()
|
![]() |
![]() |
总览 | ![]() |
![]() |
新闻 | ![]() |
![]() |
地图 | ![]() |
![]() |
贷款计算器 | ![]() |
![]() |
收藏 | ![]() |
![]() |
打印 | ![]() |
||
楼盘简介
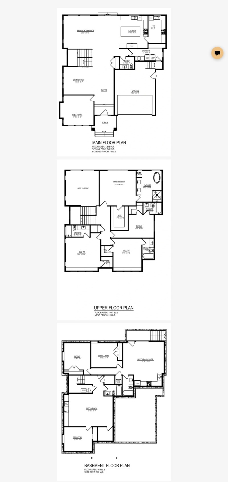
X Brookswood是 知名建商Landmark公司签名豪宅大地独立屋,土地面积7000平方英尺以上,房屋面积5133-5148平方英尺,7-8卧室+7-8卫浴+2卧房合法出租单位,平价尺价$419, 预计2022年10月竣工。


功能实用和优雅饰面
每个家庭都配有标准优雅套餐。Landmark X Brookswood 住宅的标准优雅套装融合了美观和高品质的饰面以及以家庭为中心的设计。它设有带内置长椅的超大洗衣房/泥房、厨房中的 64 英寸大冰箱/冰柜组合、超大步入式餐具室或可选的炒锅/香料厨房。您可以在 36" Fisher and Paykel 灶具上烹饪,在 8 英尺长的岛屿上工作,同时俯瞰您的后院。这种令人难以置信的布局提供四间卧室,每间卧室都可以选择拥有自己的套间浴室。在地下室,您可以自己装修,或让我们建造您的娱乐室、剧院室、健身房和两间卧室,或者选择 2 间卧室的合法套房出租单位。
高级厨房:
三种岛台颜色供选
64 英寸冰箱/冰柜组合
单孔镀铬水龙头,带拉出式喷雾
烟囱式抽油烟机
到顶橱柜 带软关闭门
橱柜照明
石英台面
超大厨房岛台
超大尺寸 餐具室或可选的炒锅厨房
单盆 18 号不锈钢水槽






功能实用和优雅饰面
每个家庭都配有标准优雅套餐。Landmark X Brookswood 住宅的标准优雅套装融合了美观和高品质的饰面以及以家庭为中心的设计。它设有带内置长椅的超大洗衣房/泥房、厨房中的 64 英寸大冰箱/冰柜组合、超大步入式餐具室或可选的炒锅/香料厨房。您可以在 36" Fisher and Paykel 灶具上烹饪,在 8 英尺长的岛屿上工作,同时俯瞰您的后院。这种令人难以置信的布局提供四间卧室,每间卧室都可以选择拥有自己的套间浴室。在地下室,您可以自己装修,或让我们建造您的娱乐室、剧院室、健身房和两间卧室,或者选择 2 间卧室的合法套房出租单位。
高级厨房:
三种岛台颜色供选
64 英寸冰箱/冰柜组合
单孔镀铬水龙头,带拉出式喷雾
烟囱式抽油烟机
到顶橱柜 带软关闭门
橱柜照明
石英台面
超大厨房岛台
超大尺寸 餐具室或可选的炒锅厨房
单盆 18 号不锈钢水槽




| 分享: |
|
以上信息由加西网通过各种渠道撰写整理而成,严禁抄袭;一切以开发商的最终信息为准。
基本信息
| 楼盘名称: | Landmark X Brookswood |
| 起价: | $2,199,000 |
| 开发商: | Landmark |
| 楼盘类型: | House |
| 所在城市: | Langley |
| 楼盘地址: | 197 Street and 36 Avenue |
| 楼盘网址: | https://landmarkbrookswood.ca/ |
联系时请告知您是从 加西网 看到的信息, 谢谢
地图 详细地图
同一城市的最近新楼盘
| 标号 | 状态 | 楼盘名称 | 类型 | 起价 | 地址 |
| A | 热卖 | Elijah | Apartment | $459,900 | 20644 Fraser Highway |
| B | 热卖 | Jericho | Apartment + Townhouse | 未知 | 19925 78B Avenue |
| C | 热卖 | Bridge & Elliot | Apartment | 未知 | 4905 Elliott Street |
| D | 热卖 | Leah | Townhouse | 未知 | 9122 King Street |
| E | 热卖 | Opus | Apartment | $428,900 | 19948 55A Avenue |
| F | 热卖 | Unison | Apartment | 未知 | 8192 208 Street |
| G | 热卖 | Unity | Apartment | $399,000 | Fraser Highway and 208 Street |
| H | 热卖 | Latimer Creek | House | $1,849,900 | 197 Street & 73A Avenue |












